Bath Street, Brighton

Back to listings

£325,000 Guide Price

Flat bedrooms 1receptions 1bathrooms 1

Description

Key Features

  • LARGE PRIVATE REAR GARDEN
  • ONE BEDROOM
  • SHARE OF FREEHOLD
  • POPULAR 7-DIALS LOCATION
  • OWN STREET ENTRANCE
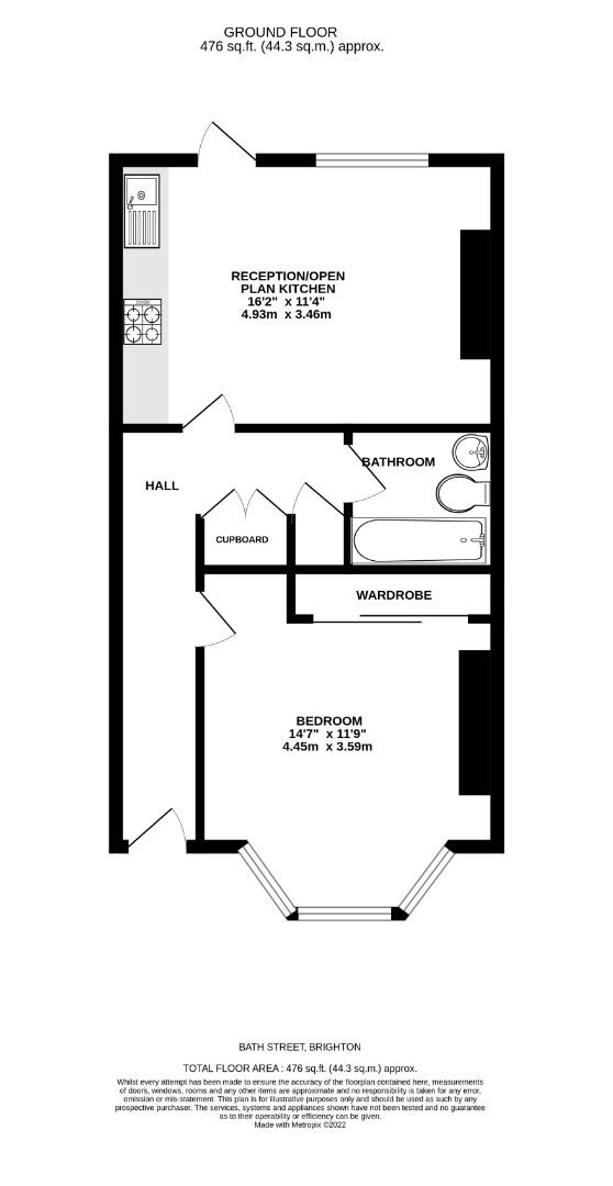
  • 44.3 SQ.M

Full Description

***GUIDE PRICE: £325,000 - £350,000***

Robert Luff & Co are delighted to bring to market this spacious one bedroom garden flat ideally situated in the ever popular 7-Dials area. Bath Street is within walking distance of Brighton Mainline Railway Station (0.4 miles), the seafront/promenade (0.8 miles) and local shops within the North Laine conservation area. Seven Dials, Churchill Square Shopping Centre, the theatres, many restaurants & cafes, the historic lanes and bus services are all within easy reach.

Accommodation offers; Open planned kitchen / lounge, spacious bedroom, bathroom with utility space. Other benefits include; own street entrance, private rear garden and a share of the freehold.

Floorplan

Similar Properties

Kingscote Way, Brighton

£300,000

Flat

bedrooms 2receptions 1bathrooms 2

Wilbury Avenue, Hove

£300,000

Flat

bedrooms 2receptions 1bathrooms 1

Russell Square, Brighton

£300,000

Flat

bedrooms 1receptions 1bathrooms 1

Tennyson Road, Worthing

£300,000

Flat

bedrooms 2receptions 1bathrooms 1