£500,000 Offers In Excess Of
House 5
2
3
Description
Key Features
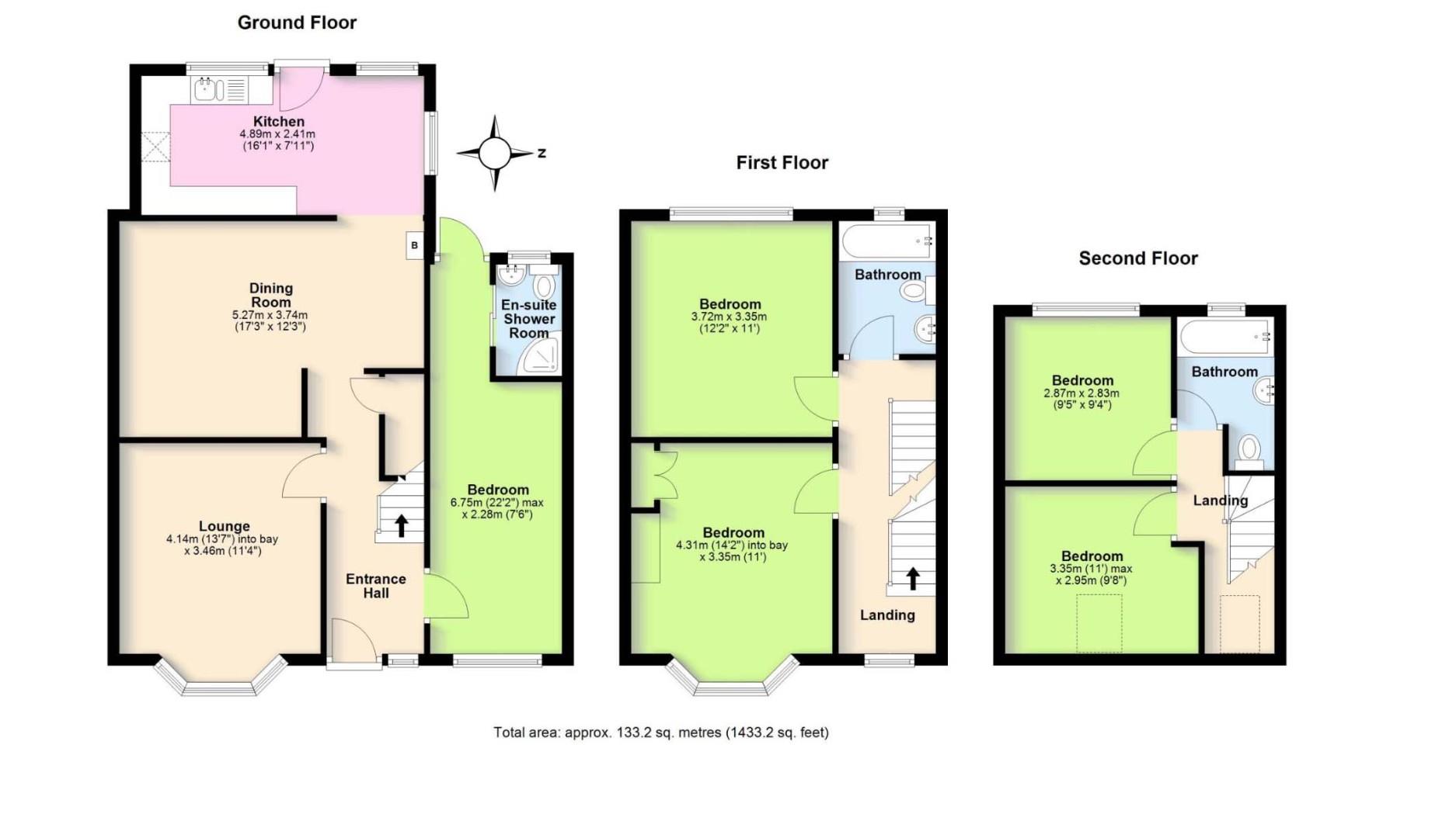
- Extended Five Bedroom Family Home
- Ground Floor Bedroom & Shower Room w/c Ideal For Multi-Generational Living
- Two Reception Rooms & Modern Fitted Kitchen
- Low Maintenance Westerly Facing Rear Garden
- Off Road Parking For Multiple Cars
- Within Catchment To Well Regarded Primary & Secondary Schools
- Two Family Bathrooms
- Council Tax Band C
- EPC Rating D
- Close To Lancing Village & Transport Links
Full Description
Robert Luff & Co are delighted to welcome to the market this wonderful family house in a popular avenue within South Lancing in catchment for well regarded primary and secondary schools and walking distance of Lancing Village, offering an array of shops, cafes and eateries along with a mainline train station and various transport links. Internally the property boasts a ground floor double bedroom with en-suite and two reception rooms making multi-generational living an easy option with a further four bedrooms and two bathrooms whilst outside offers ample off road parking and low maintenance westerly racing rear garden.
Floorplan

EPC
