Ring Road, Lancing

Back to listings

£850,000 Offers In Excess Of

House - Detached bedrooms 5receptions 2bathrooms 3

Description

Key Features

  • One Of North Lancing’s Most Coveted Hillside Addresses
  • Panoramic Sea Views And Access To South Downs Countryside Walks
  • Five Bedrooms Including A Bespoke Master Suite
  • Two Generous Reception Rooms & Elegant Entrance Hall
  • Ground-floor W/C
  • Integrated Garage & Ample Private Parking
  • Immaculately Presented With Scope To Personalise
  • Previous Planning Permission Granted To Further Extend To Side or Above Garage
  • Within Catchment To Well Regarded Primary And Secondary Schools & Lancing College Prep
  • Versatile Accommodation Which Could Easily Suit Multi Generational Living

Full Description

Set on the highly desirable Ring Road in North Lancing — one of the area’s most prestigious addresses — this impressive five-bedroom detached home commands elevated views toward the coastline and English Channel, while backing onto the rolling landscapes of the South Downs National Park. A rare opportunity to acquire a property of scale, luxury and exceptional position.

Entering the home, a beautifully arranged reception hall provides an immediate sense of refinement, complemented by two elegant reception rooms designed for both sophisticated entertaining and relaxed family living.

At the heart of the home sits a well-appointed kitchen and breakfast area, thoughtfully arranged for convenience and flow. A ground-floor cloakroom adds further practicality, and the integral garage provides internal access, secure parking and additional storage options. Also to the ground floor is the fifth bedroom which is currently arranged as a home office.

Upstairs continues the sense of space and quality. The luxurious master suite is a true sanctuary, featuring a private en-suite shower room and a walk-in wardrobe designed to accommodate the most discerning buyer. Three further bedrooms provide versatility for family, guests, or dedicated workspace — all served by a stylish family bathroom and additional shower room.

Outside, the rear garden is perfectly placed to capture sunshine throughout the day, with views extending over Lancing and out to sea — an enchanting setting for summer dining and quiet evening relaxation. The front features generous driveway parking leading to the integrated garage.

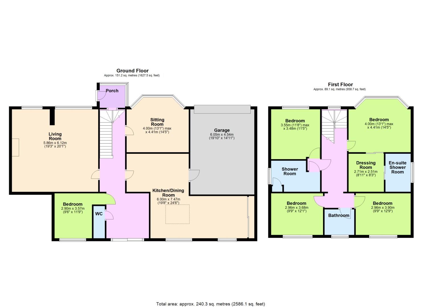
Floorplan

EPC

Similar Properties

Broadwater Street West, Worthing

£825,000

House - Detached

bedrooms 4receptions 2bathrooms 2

West Way, High Salvington, Worthing

£695,000

House - Detached

bedrooms 4receptions 2bathrooms 3

St Lawrence Avenue, Worthing

£850,000

House - Detached

bedrooms 6receptions 2bathrooms 3

Fourth Avenue, Worthing

£1,000,000

House - Detached

bedrooms 4receptions 3bathrooms 2