Sackville Road, Hove

Back to listings

£575,000 Guide Price

House - Terraced bedrooms 3bathrooms 3

Description

Key Features

  • FREEHOLD INVESTMENT
  • CURRENTLY LAID OUT AS THREE FLATS
  • CENTRAL HOVE LOCATION
  • POTENTIAL TO EXTEND / TURN BACK INTO ONE HOUSE
  • PRIVATE REAR GARDEN
  • ALL FLATS CURRENTLY LET FOR INSTANT INCOME
  • CURRENTLY ACHIEVING £31,440pa

Full Description

Guide Price £575,000 - £600,000.

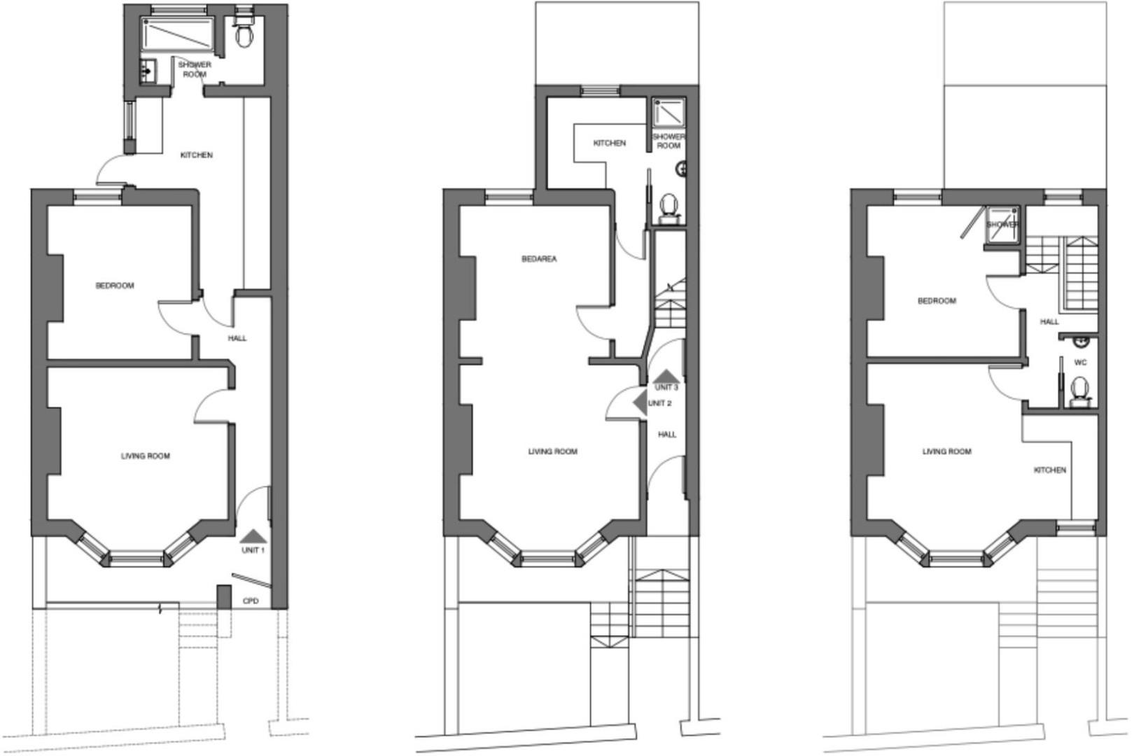
A three storey unbroken freehold residential investment comprising three self-contained flats. The property is currently let and producing £31,440pa arranged as a 1 bedroom garden flat, ground floor studio and top floor 1 bedroom flat. The property offers the opportunity for good, long-term income in an ever popular location. There is potential to reconfigure and extend the property subject to the usual consents.

The property is situated on Sackville Road close to many local amenities including the shops, bars, restaurants and cafes on Church Road, Blatchington Road and George Street. Hove seafront is also just a short distance away.

Accommodation

Garden Flat 1 Bedroom (47 Sq M) - Let £1100 PCM
Ground Floor Studio (42 Sq M) - Let £770 PCM
Top Floor 1 Bedroom ( 40 Sq M) - Let £750 PCM

Floorplan

Similar Properties

Powis Road, Brighton

£575,000

House - Terraced

bedrooms 3receptions 1bathrooms 1

Milnthorpe Road, Hove

£490,000

House - Terraced

bedrooms 4receptions 1bathrooms 1

Thorn Road, Worthing

£465,000

House - Terraced

bedrooms 3receptions 2bathrooms 1

Spring Street, Brighton

£575,000

House - Terraced

bedrooms 3receptions 1bathrooms 1