Salvington Road, Worthing

Back to listings

£425,000

Cottage bedrooms 2receptions 2bathrooms 1

Description

Key Features

  • Beautiful Cottage Built in The Early 1800's
  • Planning Permission for a Further Two Bedrooms
  • Two Double Bedrooms
  • Grade II Listed
  • Modern Bathroom
  • Large Rear Garden
  • Utility Room/Downstairs WC
  • EPC Rating - F
  • Living Room & Family Room
  • Council Tax Band - C

Full Description

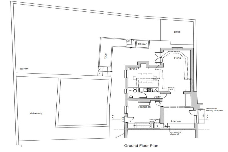
A beautiful two bedroom, grade II listed cottage situated in this sought after Salvington district close to local shops, parks, bus routes and easy access to both the A24 and A27. The accommodation offers a living room and a kitchen-diner with a through way to a family room plus a utility room/WC. Upstairs offers two double bedrooms and a modern bathroom. The property benefits from a wealth of original features, a large garden, off road parking and planning permission has been granted for an extension to add a further two bedrooms (reference AWDM/2179/21).

Floorplan

Similar Properties

Freshbrook Road, Lancing

£340,000

Cottage

bedrooms 2receptions 1bathrooms 1