Westbrook Road, Hounslow

Back to listings

£450,000 Offers In Excess Of

House bedrooms 3receptions 2bathrooms 1

Description

Key Features

  • SEMI-DETACHED HOUSE
  • HUGE DEVELOPMENT OPPORTUNITY (STNPC)
  • THREE BEDROOMS
  • 90FT REAR GARDEN WITH SIDE ACCESS
  • GARAGE/WORKSHOP IN REAR GARDEN
  • FRONT GARDEN WITH POTENTIAL FOR OFF STREET PARKING (STNC)
  • EXCELLENT LOCATION
  • CLOSE TO GOOD SCHOOLS

Full Description

** OPEN DAY FULLY BOOKED **

Robert Luff brings to the market a fantastic opportunity to purchase this bright and spacious three-bedroom semi-detached family home with ample opportunity to modernise, develop and extend (stpp).

Situated in the heart of Heston village it’s close to a wide range of shops, Heston Library and Heston Pools & Fitness. Westbrook Primary School (rated Good by Ofsted) is minutes away and Heston Community School (rated Good) is also close by.

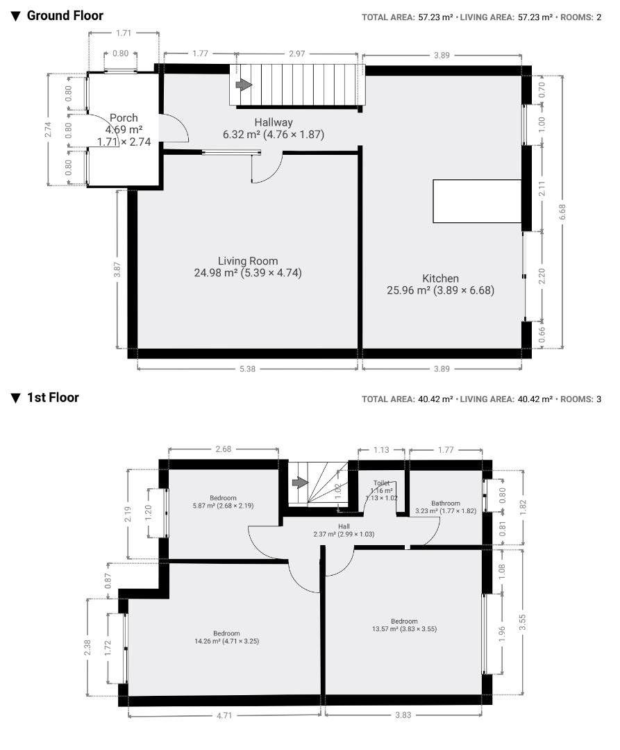
Internally, the ground floor comprises a porch, entrance hallway leading to a good-sized reception room and a dining/kitchen area with patio doors leading onto a large private rear garden and garage/workshop.
Upstairs, the property has 2 double bedrooms with the third being a larger than average single, family bathroom and a separate WC.

Further benefits include gas central heating, alarm system, a recently installed boiler, double glazed windows, free on-road parking and a large loft space.

There is a side access to the rear garden and patio and a paved front garden with potential for off-street parking.

There is an excellent range of transport links towards Hounslow, Southall & London Heathrow Airport. For those commuting into The City, Central London can be accessed via Osterley, Hounslow West, Hounslow East and Hounslow Central Underground Stations as well as Southall Station (Elizabeth Line). For motorists the A4/M4 and A40 can be found within a short drive.

Floorplan

Similar Properties

Cecil Road, Lancing

£425,000

House

bedrooms 3receptions 1bathrooms 1

Arundel Road, Worthing

£480,000

House

bedrooms 3receptions 2bathrooms 2

Monks Avenue, Lancing

£450,000

House

bedrooms 4receptions 2bathrooms 1

Eastbrook Road, Portslade, Brighton

£450,000

House

bedrooms 4receptions 1bathrooms 1